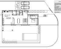
Welkom bij ons nieuwe project in Benimeit, Moraira: een moderne villa geïnspireerd op de Ibiza-stijl in een van de meest gewilde gebieden. Deze elegante villa ligt op een perceel van 800 m² op het zuiden en biedt een verfijnde combinatie van rust, luxe en een mediterrane sfeer, met wat zeezicht vanaf de begane grond en beter zeezicht vanaf de eerste verdieping. De villa is ontworpen in een moderne Ibiza stijl, met warme, natuurlijke accenten en een open indeling die rust en ruimtelijkheid uitstraalt. Met een woonoppervlakte van 254 m² en een totale bebouwde oppervlakte van 559 m² is dit huis zowel elegant als functioneel. Het lichte woongedeelte vormt het hart van het huis: een open woonkamer en een luxe keuken met kookeiland. De villa heeft drie slaapkamers en twee badkamers, waaronder een master suite met en-suite badkamer en directe toegang tot een groot balkon. De andere slaapkamers zijn ideaal voor familie of gasten. Buiten geeft een ruim zonnig terras toegang tot een privézwembad, de perfecte plek om in alle rust te genieten van het mediterrane klimaat. Natuurlijk is er privéparkeergelegenheid op het terrein. Deze villa is ideaal voor wie op zoek is naar rust en privacy, maar ook voor gezinnen die op zoek zijn naar een charmant en goed gelegen huis. Benimeit staat bekend om zijn rustige sfeer, groene omgeving en prachtige uitzichten.- Belangrijkste punten:- Vloerverwarming- airconditioning- Gemeubileerd- Prive zwembad- Gemakkelijk te onderhouden tuin- Parkeren- Topkwaliteit afwerking- Start bouw 2025- Keuze van de klant voor keuken, badkamers en tegels- Aarzel niet om contact met ons op te nemen voor meer informatie.- Afstanden:- 1km van supermarkt en restaurants- 1,7 km van winkelcentrum- 3.3km naar strand en stadscentrum- 3.9km naar golf- 6,9 km naar snelweg in Benissa
Deze informatie is hier onderhevig aan fouten en maakt geen deel uit van een contract. De aanbieding kan zonder kennisgeving worden gewijzigd of ingetrokken. Prijzen zijn exclusief aankoopkosten.