Building Plot Resale Costa Blanca (Alicante) · Benissa · Buenavista

Ref.: C15ZH-71430
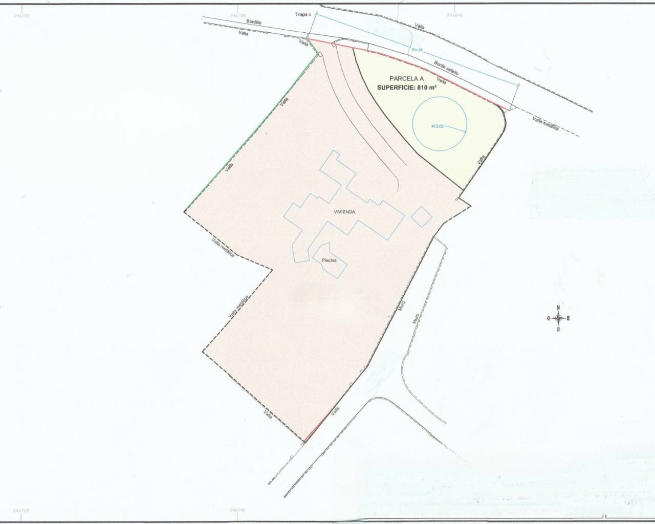
810m2

Characteristics

Plot: 810m2
Energy Rating
Energy RatingIn process

Description

This flat plot with lovely open views has walls on two sides and is presently fenced on the other two sides. The plot is only a short drive to the beach and supermarket and is conveniently situated between the towns of Moraira and Calpe. Construction will be straight forward, with water and electricity already in the road, deliveries from the road will be easy and of course building on a flat plot is a luxury in our area. Construction of 20% of the plot size will be possible.- Distances:- Supermarket 1.3km- Beach and restaurants 1.9km- Moraira 6.4km- Calpe 6.7km- Motorway access in Benissa 8km- For further information please do not hesitate to contact us.

Location

Economy

This info given here is subject to errors and do not form part of any contract. The offer can be changed or withdrawn without notice. Prices do not include purchase costs.

Calculate mortgages

Currency exchange

  • Pounds: 238.488 GBP
  • Russian ruble: 238.488 RUB
  • Swiss franc: 250.553 CHF
  • Chinese yuan: 2.166.808 CNY
  • Dollar: 320.210 USD
  • Swedish krona: 2.962.300 SEK
  • The Norwegian crown: 2.962.713 NOK

Availability

Ask for information

Responsable del tratamiento: , Finalidad del tratamiento: Gestión y control de los servicios ofrecidos a través de la página Web de Servicios inmobiliarios, Envío de información a traves de newsletter y otros, Legitimación: Por consentimiento, Destinatarios: No se cederan los datos, salvo para elaborar contabilidad, Derechos de las personas interesadas: Acceder, rectificar y suprimir los datos, solicitar la portabilidad de los mismos, oponerse altratamiento y solicitar la limitación de éste, Procedencia de los datos: El Propio interesado, Información Adicional: Puede consultarse la información adicional y detallada sobre protección de datos Aquí.